Dom na sprzedaż Kocmyrzów-Luborzyca, Goszyce

5 pokoi
0,00 zł/m2
VIST-DS-87
Oblicz ratę kredytu

899 000 zł

Dom na sprzedaż

Szczegóły oferty

Symbol oferty VIST-DS-87
Powierzchnia 0,00 m²
Powierzchnia użytkowa [m2] 125,33 m²
Powierzchnia działki [m2] 439 m²
Liczba pokoi 5
Liczba sypialni 4
Rodzaj domu wolnostojący
Technologia budowlana pustak
Liczba pięter w budynku 2
Garaż w bryle
Okna PCV
Instalacje nowe
Balkon brak
Zagosp. działki zagospodarowana
Kształt działki prostokąt
Pokrycie dachu dachówka ceramiczna
Pozwolenie na użytkowanie tak
Stan budynku do wykończenia
Ogrodzenie działki mieszane
Rok budowy 2025
Gaz jest
Woda jest
Dojazd asfalt
Otoczenie zabudowa jednorodzinna
Ogrzewanie C.O. GAZOWE
Alarm tak
Tarasy taras
Drzwi antywłamaniowe tak
Rolety antywłamaniowe tak
Prąd jest
Kanalizacja szambo
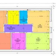
Pomieszczenia
Michał Zgoda

Michał Zgoda

Specjalista ds. gruntów i nowych inwestycji

Napisz wiadomość 14 Ofert

Opis nieruchomości

VistaDom oferuje do sprzedaży nowe osiedle domów jednorodzinnych, położone na kameralnym osiedlu w Goszycach w gminie Kocmyrzów - Luborzyca.

Goszyce koło Krakowa to naprawdę urokliwe miejsce, które łączy w sobie spokój podkrakowskiej wsi z bliskością wielkiego miasta. Otoczone zielenią i malowniczymi krajobrazami, są idealne dla osób ceniących kontakt z naturą. 
To kameralne osiedle składa się z 16 domów jednorodzinnych , usytuowanych na ładnych, płaskich działkach w otoczeniu niskiej zabudowy i zielonych pól. 

Szczegóły inwestycji

  • 16 budynków wolnostojących
  • 5 pokoi, kuchnia+ jadalnia, 2 łazienki, kotłownia, garaż
  • Powierzchnia użytkowa domu : 125,33 m2
  • Powierzchnia działek od 4,2 ara do 5,9 ara
  • Ogrzewanie podłogowe w całym budynku
  • Rolety zewnętrzne
  • Światłowód
  • Stan deweloperski
Szczegóły pomieszczeń

Parter
  • Salon z jadalnią - 41,59 m2
  • Kuchnia - 6,53 m2
  • Łazienka - 5,01 m2
  • Wiatrołap - 2,92 m2
  • Przedpokój - 2,51 m2
  • Pomieszczenie gospodarcze - 6,52 m2
Piętro
  • 4 sypialni - 9,46 m2, 10,42 m2, 10,77 m2, 11,22 m2
  • Łazienka - 5,65 m2
  • Przedpokój - 2,30 m2
  • Garderoba - 6,51 m2

Architektura i konstrukcja
  • Konstrukcja ścian zewnętrznych – pustak ceramiczny
  • Ocieplenie – styropian gr 20cm 
  • Fundamenty – ławy monolityczne żelbetowe, ściany z pustaków szalunkowych 
  • Konstrukcja ścian wewnętrznych konstrukcyjnych oraz działowych – pustak ceramiczny
  • Strop na parterze – monolityczny żelbetowy
  • Tynki wewnętrzne – gipsowe
  • Nadproża – monolityczne, żelbetowe, belki żelbetowe
  • Schody – żelbetowe, dwubiegowe
  • Dach – dwuspadowy, konstrukcja drewniana, krycie dachówką płaską, podbitka drewniana

Stolarka i elementy zewnętrzne
  • Okna – PVC, 3 szybowe, SYSTEM SMART SLIDE
  • Drzwi zewnętrzne – antywłamaniowe,
  • Brama garażowa Wiśniowski   

Zagospodarowanie terenu
  • Taras i opaska dookoła budynku z kostki brukowej
  • Podjazdy i ścieżki przed budynkiem wykonane z kostki brukowej
Instalacje sanitarne – dostosowane do architektury budynku
  • Ogrzewanie w budynku – C.O.
  • Ogrzewanie podłogowe w całym budynku
  • Szambo
  • Woda 
Instalacje elektryczne
  • Zasilanie linią kablową z zestawu złączowo-pomiarowego
  • Instalacja elektryczna wewnętrzna wraz z zamontowanym osprzętem, wypusty oświetleniowe zakończone kostką.
  • Instalacja zewnętrzna – wypust kablowy na zewnątrz budynku pod oświetlenie zewnętrzne w ogrodzie
  • Instalacja alarmowa – okablowanie
  • Instalacja antenowa – okablowanie
Okolica
  • 20 km do centrum Krakowa
  • 7 kilometry do zjazdu w Łuczycach i północnej obwodnicy Krakowa
  • 300 m do przystanku autobusowego (linia nr 202)

W celu uzyskania dodatkowych informacji o tej ofercie, prosimy o kontakt z naszym biurem.
Michał Zgoda

Tel.: +48 793 91 79 79

Lokalizacja nieruchomości

Kalkulatory

Kalkulator kredytowy

Wysokość raty

PLN
%

Kalkulator kosztów

Podatek od czynności cywilno-prawnych

Taksa notarialna
(opłata notarialna)

Wniosek o wpis do KW

VAT od prowizji
agencji nieruchomości

VAT od taksy notarialnej
(opłaty notarialnej)

Prowizja agencji nieruchomości

Wypisy aktu notarialnego

Razem

Uwaga: mogą wystąpić dodatkowe opłaty za założenie księgi wieczystej oraz ustanowienie hipoteki.

PLN
PLN
PLN
PLN
PLN
PLN
%
PLN

Specjalista ds. gruntów i nowych inwestycji

Proszę wprowadzić poprawne imię i nazwisko
Proszę wprowadzić poprawny numer telefonu
Proszę wprowadzić poprawny adres e-mail
Proszę zaznaczyć wymagane zgody
Rozwiąż równanie:
27 4
Niepoprawny wynik